Casa en San Ramon - Pilar de Este - Estrenar

direccion Pilar Del Este - Barrio San Ramon 0, Pilar

volver Volver al listado
left
right
left
right

Venta

USD 195.000

+ $ 350000 de expensas
Codigo Código de propiedad: AHO7795913
  • Tipo de propiedad Casas
  • ambientes +4 Ambientes
  • toilet 2 baños
  • toilet 1 toilette
  • cama 3 Dormitorios
  • Orientacion Orientación Norte
  • Superficie cubierta Sup. cubierta 138m2
  • Superficie total Sup. total 145m2
  • Pisos 2 pisos

Acerca de la propiedad

EXCELENTE CASA A ESTRENAR - PILAR DEL ESTE - BARRIO SAN RAMON 

• Memoria Descriptiva
La vivienda se adapta al entorno a través de la disposición de los volúmenes y la orientación, juega con las visuales y
la constante tensión presente en la geometría. Logra integrar el proyecto a partir de un patio semi interno que sirve
para darle aire y escala a los volúmenes.
Está compuesta por un juego de volúmenes en diferentes escalas, un arco horizontal que enmarca el acceso, la
cochera y el ancho total del lote, un volumen longitudinal que abraza el arco de frente y se une con un volumen
mucho más alto de manera perpendicular orientado hacia el norte.

• Memoria técnica:

Ubicada en el barrio San Ramón, dentro del complejo de Pilar del Este, la vivienda se desarrolla en dos plantas sobre
un lote de 574.91 m2, 138.81 m2 cubiertos y 31.79 semi cubiertos, ofrece un diseño moderno, funcional y pensado
para lograr el mayor confort en todos los ambientes.

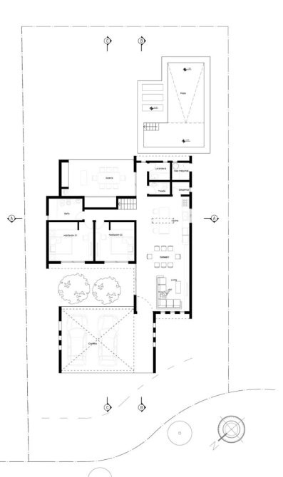
• Distribución de ambientes:

La vivienda está pensada para ser lo más funcional posible, separa el espacio público del privado.
En planta baja: La casa cuenta con un amplio living/comedor integrado con la cocina iluminada de manera cenital,
aras de la cocina tenemos una despensa, un toilette, la lavandería y un espacio de guardado, la cocina se conecta de
con un gran ventanal a la galería y la parrilla en conexión directa a la pileta de 28 m2. En planta baja también
contamos con dos habitaciones con baño completo, en el frente deja lugar a dos cocheras con conexión directa al
patio interno.

En primer piso:

Tenemos la suite con baño completo, vestidor y un balcón que está orientado al norte, en conexión
directa con el patio interno.

• Terminaciones:

La vivienda brinda terminaciones de calidad y prestaciones eficientes.
Pisos de porcelanato rectificado, revestimientos en baños y cocina, aberturas línea Módena Doble Vidrio Hermético,
piscina con luces, circuitos de electricidad separados, preinstalación de aires acondicionado en todas las
habitaciones y el living, conexión para lavarropas, terminación exterior texturado tipo tarquini, pintura látex interior,
espacio para pérgola en estacionamiento ya preparado, un patio interno, escalera de hormigón armado.

• Detalles constructivos:

Fundación hecha con platea de doble malla y pilotines de refuerzo, estructura de hormigón armado, mampostería
exterior con ladrillo de 18cm de espesor, losas de viguetas con ladrillo de telgopor, contrapisos de perlas de EPS para
lograr mayor aislación térmica, zócalo hidrófugo de 40cm de altura, revoque impermeable en todo el exterior,
revoque impermeable interior hasta 1m de altura para evitar humedad de cimientos, conexiones sanitarias hechas
con materiales de la marca Awaduct, aberturas línea Módena, DVH 4+9+4, ventanales con una cara laminada para
mayor seguridad, techos con doble capa de ceresita + membrana como terminación final.

• Servicios:

Agua de red, cloaca de red, gas de red

Comodidades

  • Patio Con patio
  • Cochera 2 cocheras
  • Pileta Con pileta
  • Jardin Con jardin
  • Parrilla Con parrilla
  • Mascotas Acepta mascotas
  • balcon Con balcon
  • Calefaccion Con calefacción
Ver más

Ubicación

Servicio brindado por

buscadorprop

Todos los derechos registrados:

grupotodo
whatsapp Whatsapp email Contactar telefono Llamar
Chatea con nosotros whatsapp